Ref.:
Search:
Property Type:
In:
Location:
Rooms:
Categoría:
Features:
Price:

Buildable Urban Plot of 777 m² Located in Mas Pau (ref.3671)

sale: 115,000 €
Ref. 3671 |
sale: 115,000 €

Buildable Urban Plot of 777 m² Located in Mas Pau

Plot for sale in Avinyonet de Puigventos, Girona (Avinyonet de puigventós)

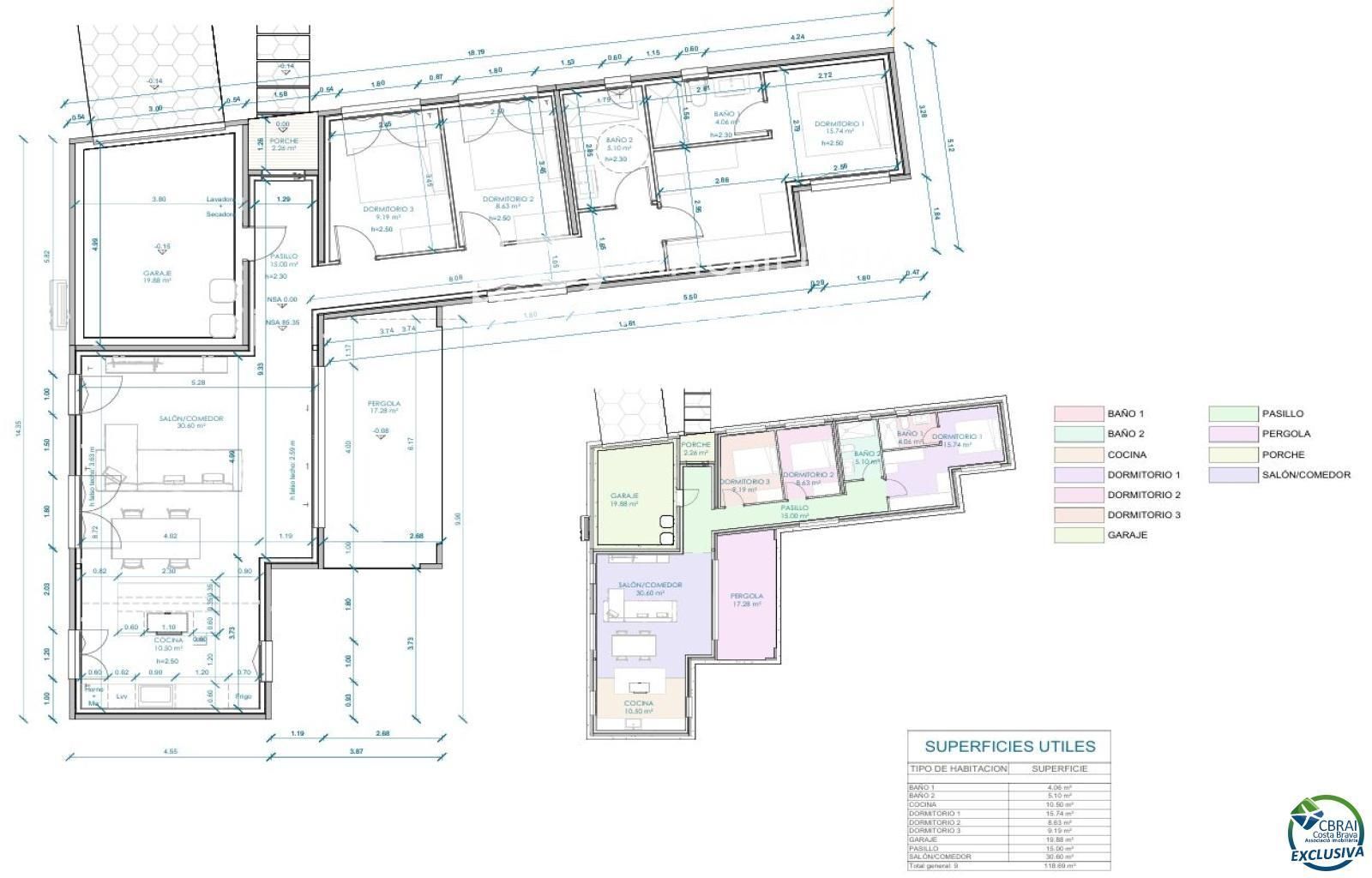
Excellent opportunity to acquire a corner urban plot of 777m² located in the quiet and well-connected area of Mas Pau. Fully buildable land, ideal for developing a modern single-family home with a garden. It is delivered with a project designed by Modular Home, the most prestigious Spanish company for concrete modular homes. The plan features a single-story L-shaped house, with a pergola and a south-facing pool. There is the possibility to modify certain parts of the project, which is ready for the building permit application. Ideal for those looking to build a custom home in a growing residential area. Excellent location and orientation. For more information or to schedule a visit, contact us without obligation.

📲📩 Contact us and we will assist you throughout the entire purchase process.



The indicated price does not include taxes or costs related to the purchase (ITP or VAT, notary, land registry and administrative fees), which are to be borne by the buyer. Real estate agency fees are included in the price. The property is sold in its current condition. The information provided is for guidance only and may be subject to errors or omissions. Register of Real Estate Agents of Catalonia AICAT 11055.

Año de construcción 2026
Plot 8,364 ft2
Orientation Sur
The address of the property is approximate.

For more information about this property, please fill out the form: